

产品中心
真空泵系列

|
型 号
|
蒸发量
Mpa |
排气量
m3/h |
工作水压
kgf/cm3 |
耗气量
kg/h |
汽压
kgf/cm2 |
电机水泵
功率kw |
|
ZS-60L
|
755
|
60
|
3
|
40
|
3
|
3BA-9
7.5 |
|
ZS-80L
|
755
|
80
|
3
|
40
|
3
|
3BA-9
7.5 |
|
ZS-100L
|
755
|
100
|
3
|
40
|
3
|
3BA-9
7.5 |
|
ZS-120L
|
755
|
120
|
3
|
40
|
3
|
3BA-9
7.5 |
|
ZS-130L
|
755
|
130
|
3
|
45
|
3
|
3BA-9
7.5 |
|
ZS-150L
|
755
|
150
|
3
|
45
|
3
|
3BA-9
7.5 |
|
ZS-180L
|
680
|
180
|
4
|
50
|
4
|
4BA-12
15 |
|
ZS-230L
|
680
|
230
|
4
|
60
|
4
|
4BA-12
15 |
|
||||||||||||||||||||||||||||||||||||||||||||||||||||||||||||||||
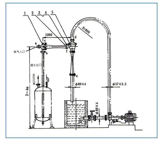
安装尺寸![]()
![]()
安装说明
1.本设备需以3公斤力/厘米2进行水压试验,5分钟以后降至1公斤力/厘米2(表压)
2.本设备需以1公斤力/厘米2进行气密性试验,时间为2小时,每小时平均泄露量不得超过0.2%(以上两项试验不包括出水管)。
3.本设备应根据安装设计图纸进行安装,各法兰连接不作为支承重量之用,假想线部分设备由工艺决定选用。
|
|||||||||||||||||||||||||||||||||||||||||||||||||||||||||||||||||||||||||||||||||
服务热线
13901872515